• Die cast aluminum lens frame with tempered glass and double gasketing
  • Fully Shielded, Full Cutoff Optics
  • LED Light Engine life delivers 70% of rated lumens at 100,000-hours
View Technical Specs
Performance
Watts 36W
Color Temp 5000K (Cool)
Lumens 4,229 lm
Efficacy 105.7 lm/W
Color Accuracy 67 CRI
L70 Lifespan 100,000 Hours
Type Constant Current
120V 0.48A
208V 0.36A
240V 0.30A
277V 0.24A
Input Watts 40W
Dimensions
Link to Dimension Drawing

Weight: 10.1 lbs

Technical Specifications
Compliance
UL Listed
Suitable for wet locations
IESNA LM-79 & LM-80 Testing
RAB LED luminaires and LED components have been tested by an independent laboratory in accordance with IESNA LM-79 and LM-80.
Performance
Lifespan
100,000-Hour LED lifespan based on IESlm-80 results and TM-21 calculations
Construction
Thermal Management
Cast aluminum Thermal Management system for optimal heat sinking. Designed for cool operation, most efficient output and maximum LED life by minimizing LED junction temperature.
Housing
Precision die-cast aluminum housing, lens frame
Cold Weather Starting
The minimum starting temperature is -40°F (-40°C)
Maximum Ambient Temperature
Suitable for use in up to 104°F (40°C)
Finish
Formulated for high durability and long-lasting color
Green Technology
Mercury and UV free. RoHS-compliant components.
Installation
Mounting
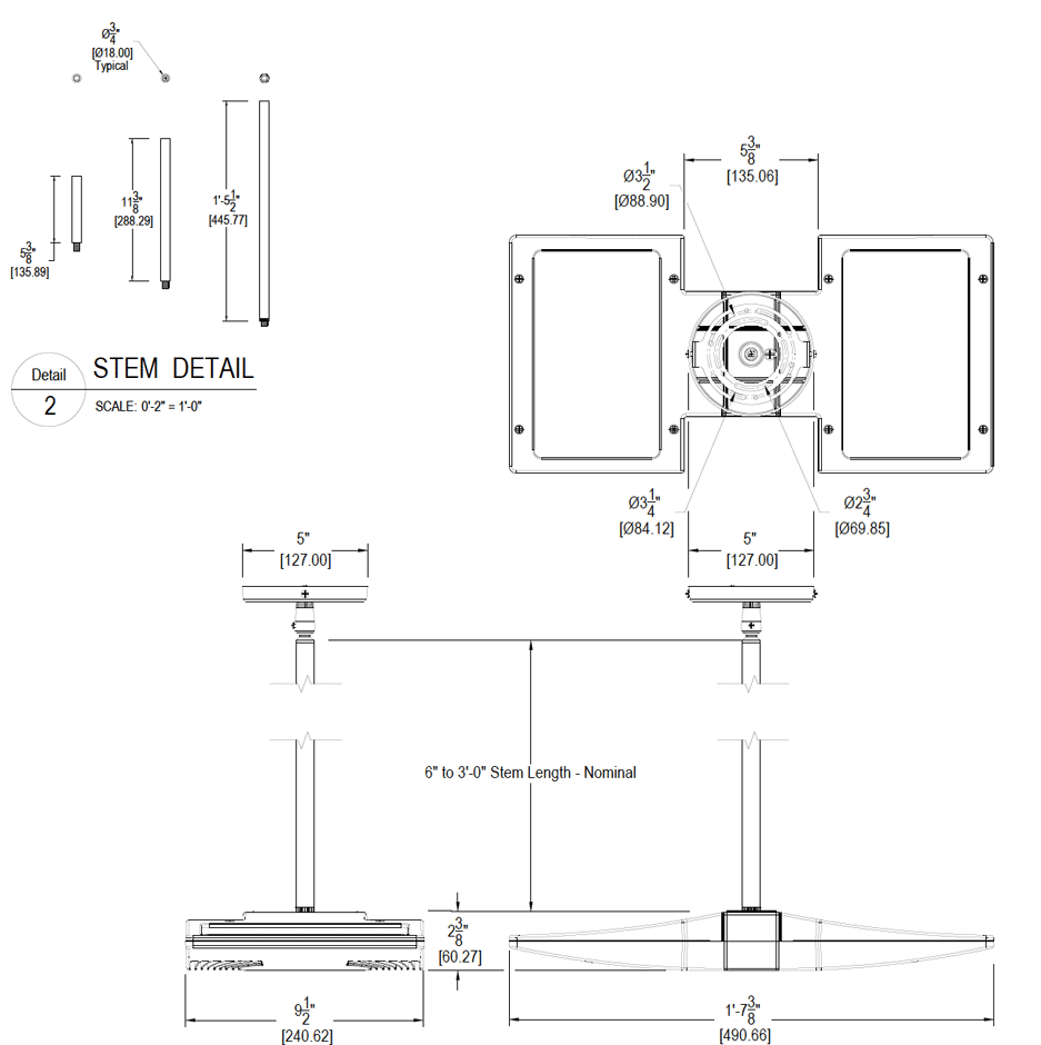
3 mounting stems included. 6", 12" and 18" can be combined to achieve a maximum length of 36". 42" of wire supplied. The pendants thread into a hang-straight, leveling the fixture. Pendant outside diameter is 3/4". Threads are 1/4". Circular canopy included.
LED Characteristics
Color Consistency
7-step MacAdam Ellipse binning to achieve consistent fixture-to-fixture color
Color Stability
LED color temperature is warrantied to Shift no more than 200K in color temperature over a 5-year period
Color Uniformity
RAB's range of Correlated Color Temperature follows the guidelines of the American National Standard for Specifications for the Chromaticity of Solid State Lighting (SSL) Products, ANSI C78.377-2017.
Other
Patents
The design of the PLED is protected by U.S. Patent D608,040, D615,689 and patents pending in Canada, China, Taiwan and Mexico.
5-Year, No-Compromise Warranty
RAB warrants that our LED products will be free from defects in materials and workmanship for a period of five (5) years from the date of delivery to the end user, including coverage of light output, color stability, driver performance and fixture finish. RAB's warranty is subject to all terms and conditions found at rablighting.com/warranty.
Electrical
Driver
(2) Constant Current, Class 2, 100-277V, 50/60 Hz, 4 kV surge protection, 500mA, 100-240VAC 0.3-0.15A, 277VAC 0.15A, Power Factor 99.2%
THD
10.8% at 120V

Recently Viewed Products

 This is a link to the product GN1LED13YSYL GN1LED13YSYL
Decorative 688 Lumens Gooseneck 13W 3000K 24 Inches Arm Spot Reflector No Shade Yellow
 This is a link to the product RDLED4S12D-80YY-M-B RDLED4S12D-80YY-M-B
Remodeler 4" Square 12W Dim 80 Degrees 2700K 80 Cri Matte Cone Black Ring
 This is a link to the product WFRX-2 WFRX-2
Edge-Lit Wafer 2" 10/8/6W 5Cct 90Cri 120V Triac Round White Smooth
 This is a link to the product GN5LED26NBWN GN5LED26NBWN
Decorative 1526 Lumens Gooseneck 26W 4000K Pole 20 Inches High & 19 Inches From Pole No Shade Brown
 This is a link to the product HALV10L930-MG-W/LC/E2 HALV10L930-MG-W/LC/E2
Architectural 228 Lumens Halv Forward Light 14W 90Cri 3000K Metallic Spun Gold Lens White Finish Lightcloud Controller Battery Backup
 This is a link to the product IVAT4-45LWM750WH/WS2/LC IVAT4-45LWM750WH/WS2/LC
Arealights 5321.4 Lumens Ivelot T4 40W 4500L Wall 5000K 70 Cri White 347-480V Dim Ws2 Lightcloud Controller
 This is a link to the product GN1LED13YSYL GN1LED13YSYL
Decorative 688 Lumens Gooseneck 13W 3000K 24 Inches Arm Spot Reflector No Shade Yellow
 This is a link to the product RDLED4S12D-80YY-M-B RDLED4S12D-80YY-M-B
Remodeler 4" Square 12W Dim 80 Degrees 2700K 80 Cri Matte Cone Black Ring
 This is a link to the product WFRX-2 WFRX-2
Edge-Lit Wafer 2" 10/8/6W 5Cct 90Cri 120V Triac Round White Smooth
 This is a link to the product GN5LED26NBWN GN5LED26NBWN
Decorative 1526 Lumens Gooseneck 26W 4000K Pole 20 Inches High & 19 Inches From Pole No Shade Brown
Link to Live Chat

Contact us

A RAB support representative will respond soon.

Send a message
Link to Lighting Design

Lighting Design

Our lighting designers can help you create a custom layout.

Request Lighting Layout
Link to DLC qualified products

DesignLights Consortium®

Find DLC qualified products.

Learn More
Link to Where to Buy

Where to Buy

Find a distributor or RAB Sales Representative.

Go to Locator